Residential: Remodel and Renovation

This project for the Residential Renovation Studio at PCC had us work with actual clients to design a home remodel and second story addition. Project program included: a small detached ADU, larger kitchen, third bedroom, second bath, and an enclosed front porch. Schematic design proposals were influenced by the client’s connection to their backyard garden area, and featured a large covered porch, adjacent expansive kitchen and a smaller, private covered porch off the second story master suite. A condensed Construction Document set was provided to the clients.  

Proposed enclosed front porch and second story addition at schematic design phase. (Spring 2020)

Floor Plan Construction Document. (Spring 2020)

New kitchen and remodeled dining room at schematic design phase. (Spring 2020)

Backyard view with ADU and house addition at schematic design phase. (Spring 2020)

2D Drafted Detail for covered porch above another covered porch. (Spring 2020)


Residential: New Construction

Duplex massing study at Design Development phase. (Residential Studio - Fall 2019)

For our Residential Studio class, we explored increasing housing density in Portland. This project utilized a corner lot where I proposed a duplex inspired by the Northwest with a nod to modern farmhouses. Schematic Design, Design Development and Construction Document phases were completed, including prescriptive lateral bracing, framing plans, and beam load calculations with Forte software.

Detail drafting in Revit. (Residential Studio - Fall 2019)

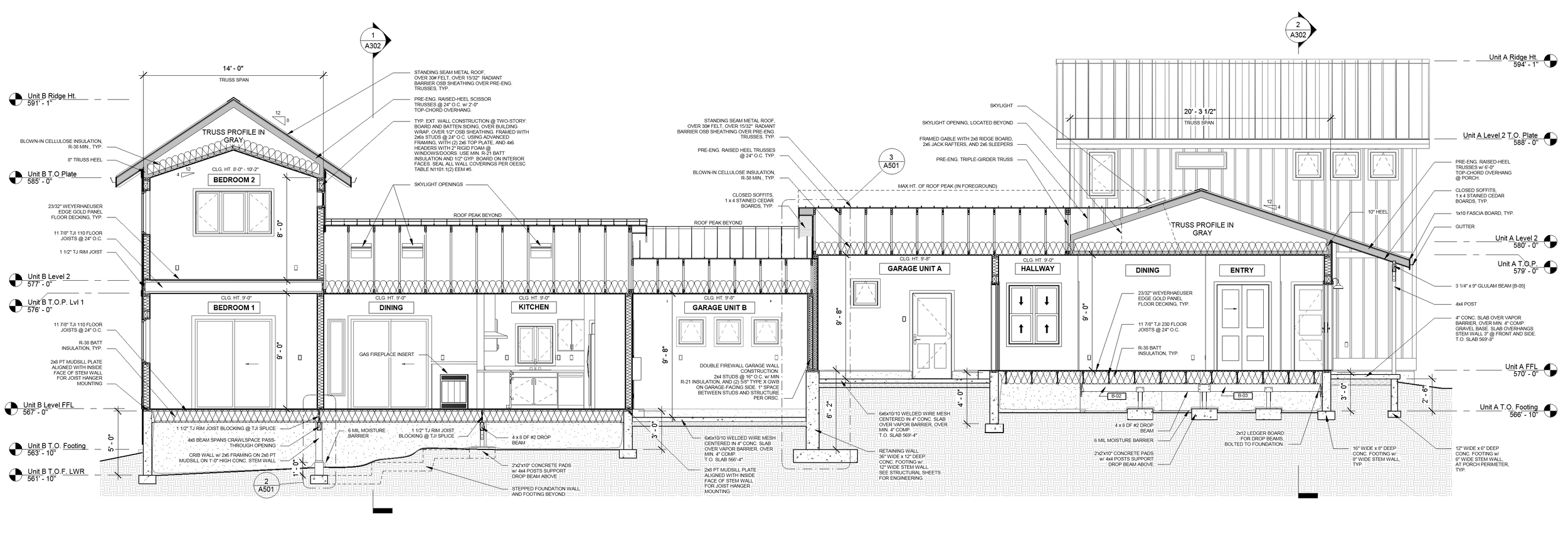
Section Construction Doc. Set. (Residential Studio - Fall 2019)

Duplex elevation Construction Doc. Set (Residential Studio - Fall 2019)

Framing plan detail. (Residential Studio - Fall 2019)


Commercial and Residential Mixed-Use

Commercial Studio gave us the opportunity to dive deep into the zoning and building codes while designing a mixed-use building. The program called for ground floor retail spaces, parking for bikes and cars, and two or three floors of residential apartments, all for a lot in the heart of Multnomah Village in SW Portland.

My design proposal emulates the small-town atmosphere of the area, while addressing the need for higher density living spaces. Careful consideration of the street-facing facades aimed to break up large massing areas with insets, changing roof lines and neutral colors of white and dark gray brick. A contrast of strategic orange metal facades highlights the massing divisions and draws the eye to the main residential entry.

Commercial mixed use building design for site in SW Portland. (Commercial Studio - Winter 2020)

Floorplan CD (Commercial Studio - Winter 2020)

Capitol Apartments front lobby entrance. (Commercial Studio - Winter 2020)

Commercial mixed use building design for site in SW Portland. (Commercial Studio - Winter 2020)

Section Construction Document (Commercial Studio - Winter 2020)